More Photos
 at Lot 1-5/13 Hilda Road, Favona, Manukau City, Auckland
 at Lot 1-5/13 Hilda Road, Favona, Manukau City, Auckland
 at Lot 1-5/13 Hilda Road, Favona, Manukau City, Auckland
 at 68 Owhiti Street, Titahi Bay, Porirua, Wellington
 at 24 Garden Road, Piha, Waitakere City, Auckland
FOR SALE

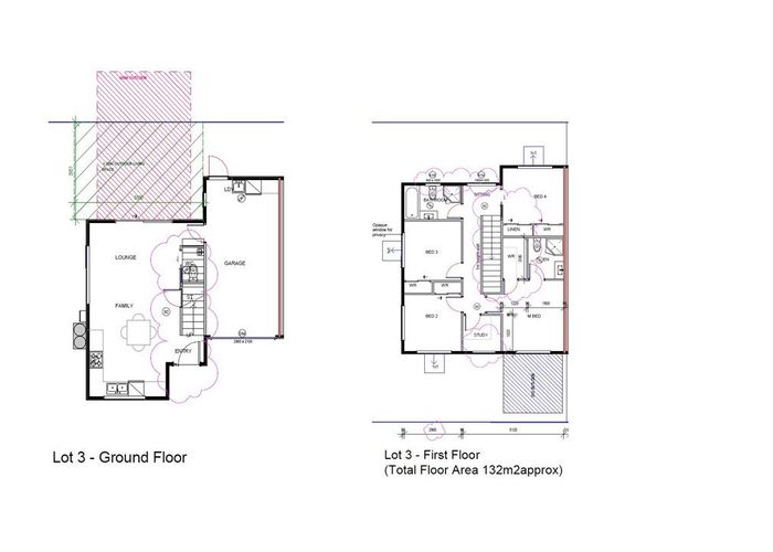
Lot 1-5/13 Hilda Road, Favona, Manukau City, Auckland

Listed: 13 Mar 2026
Price by negotiation
4
2
View council records

Home loan repayment

Estimated home loan payment:
$1,162/ fortnight

Find the right home loan for you

Whether you’re a first home buyer, or looking to buy your next home, an ANZ Home Loan Coach can help you on your journey.
Advertisement
Are you the owner? Track your home now.

Home loan repayment

Estimated home loan payment:
$1,162/ fortnight

Find the right home loan for you

Whether you’re a first home buyer, or looking to buy your next home, an ANZ Home Loan Coach can help you on your journey.
Advertisement

Property estimates

HomesEstimate: 2 Apr 2026

$840K

Estimate range

$790K
$885K

These are computer generated price guides only. For a property appraisal, please contact a local agent.