More Photos
 at 85 Lewis Street, Glenview, Hamilton
 at 85 Lewis Street, Glenview, Hamilton
 at 85 Lewis Street, Glenview, Hamilton
 at 85 Lewis Street, Glenview, Hamilton
 at 85 Lewis Street, Glenview, Hamilton
NOT LISTED
What's this?

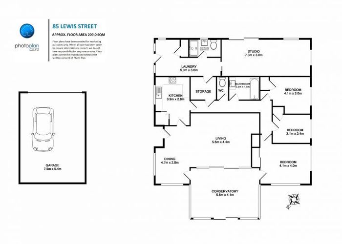
85 Lewis Street, Glenview, Hamilton

HomesEstimate: 2 Oct 2025
$
750K
4
2
View council records

Home loan repayment

Estimated home loan payment:
$1,827/ fortnight

Find the right home loan for you

Whether you’re a first home buyer, or looking to buy your next home, an ANZ Home Loan Coach can help you on your journey.
Advertisement
Are you the owner? Track your home now.

Home loan repayment

Estimated home loan payment:
$1,827/ fortnight

Find the right home loan for you

Whether you’re a first home buyer, or looking to buy your next home, an ANZ Home Loan Coach can help you on your journey.
Advertisement

Property estimates

HomesEstimate: 2 Oct 2025

$750K

Estimate range

$710K
$785K

Do you own this home?

These are computer generated price guides only. For a property appraisal, please contact a local agent.